13208166786
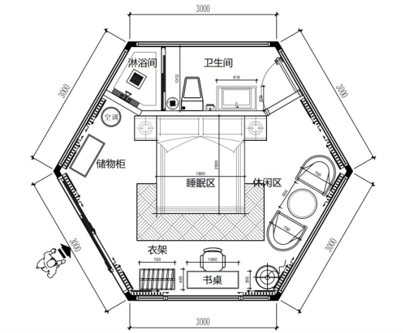
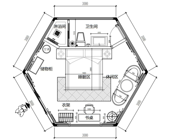
六边形帐篷(竹林物语)

六边形帐篷(竹林物语)

主材:优质碳钢钢管(氟碳漆防锈处理)
外膜:PVDF优质膜材
内膜:PVC
墙体:双层中空玻璃 规格:3m6边 套内面积:24㎡
投影面积:44.87㎡
抗风等级:10级以下

产品咨询
产品介绍

六边形帐篷(竹林物语)

六边形帐篷(竹林物语)

六边形帐篷(竹林物语)

六边形帐篷(竹林物语)


产品咨询